昂宝大厦On-Bright Plaza
广州市黄埔区莲花砚路1号
项目展示 · 区位介绍
01
科学城历史
昂宝大厦位于广州市黄埔区科学城,科学城(Guangzhou Science City)是广州市黄埔区(原萝岗区)的一个现代化科学园区,1998年该地块重新被规划,20年间,科学城由最初的3.7平方公里,发展到规划中的144.65 平方公里,扩大约39倍。
发展方向
2020年12月黄埔区政府发布:科学城产业发展定位为“全球智能制造基地”和“中国智造品牌中心”,将培育壮大世界级新一代信息技术、人工智能、生物医药三大新兴产业集群,打造“中国智造”标杆产业,建设成为领航全球的IAB产业基地、国家先进制造示范产业基地、大湾区科技创新发展示范区。
2023年展望
2023年广州市第十六届人民代表大会第三次会议强调,将全力推动经济高质量发展和高速度增长,推动黄埔区、广州开发区由制造大区向制造强区迈进。
项目展示 · 大厦介绍
02
立体综合
昂宝大厦,东面近开创大道、南面近科学大道及沈海高速、西面近大观北路及机场第二高速(在建)、北面近广汕公路,十五分钟到达广佛肇高速、广深高速、广园快速、20分钟迅速到达天河CBD,距离火车站与机场40分钟车程。
交通便捷
昂宝大厦位于莲花砚路1号,邻近崖鹰石路、香山路、神舟路,300米范围内十多条公交车线路。相邻地铁6号线金峰站、21号线神舟路站,8站可直达天河CBD。
浓厚商圈
昂宝大厦项目位于科学城总部经济圈,1公里聚集世界500强企业(南方电网、视源股份、京信通信、中大达安基因等)。
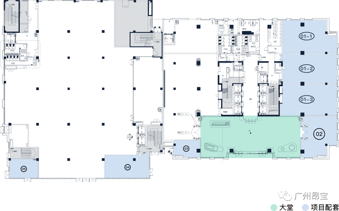
项目展示 · 整楼概况
03
<<< 左右滑动查看详情 >>>
推荐单元 · AB栋轻研发办公
04
A栋3层:1792.44㎡
A栋5层:1689.60㎡
A栋7-12层,15-18层:1316.84㎡
A栋16层01:521.48㎡
A栋16层02:333.11㎡
A栋16层03:462.25㎡
A栋1层01:538.43㎡
A栋1层02:144.71㎡
A栋1层03:44.80㎡
B栋1层:1702.21㎡
B栋2层:2109.13㎡
B栋3层:2138.42㎡
B栋5层:1161.95㎡
配套展现 · 智慧配套,独家尊享
05
人机无感通行
“零接触”为核心使楼宇实现人脸识别的身份认证并联动闸机通行权限、电梯的呼梯与层控等无感通行实现人与机器人共用通行设施。
智慧楼宇机器人
迎宾系统:迎宾接待/人脸识别及测温/ VIP 预设预约/无障碍通行,支持个性化定制;
派送系统:双舱大空间,优越避震底盘,网上商城/百度智能音箱等多种下单方式。
智慧停车场
根据高峰与非高峰时段的区分,自动打开照明设备、通风系统,自动识别到车辆或人员经过随即打开区域照明。
公区智慧节能
根据高峰、非高峰、夜间等时段,对照明、空调、新风系统等公区设备,启动智能感应模式,确保舒适环境同时,减低不必要的能源损耗。
新风系统
送风系统和排风系统组成的独立空气处理系统,通过管道把室内浑浊的空气排出去,通过新风机将室外空调净化且过滤,再引入到室内,不同开窗也能随时随地吸到新鲜空气,有效避免空调病,更舒适健康。
智慧物业系统管理
小程序端7*24小时在线智慧系统管家,水电、物业费结算清晰。
配套展现 · 节能高效,一步到位
06
能源管理系统,节省电能≥20%
毫米波人体存在传感器,识别到有人进入打开部分灯光、窗帘、空调等,如果预设时间内持续识别无人,既自动断电节省能源。
智慧楼宇设备管理,节省人力≥30%
采用集中管理,分散控制的方式;根据不同的管理模式设定出定时、启停、节能模式等自动化控制。
故障报警,应急处理,管理效率提升30%
对设备的运行情况进行实时监视,可使管理人员及时发现故障问题:确保楼宇物与人身的安全。
公共照明智能化控制,节能≥40%
根据不同区域划分,结合人体检测传感器、门禁、电梯楼层等接口联动,制定不同场景下照明设备的调度策略,大幅降低照明能耗。
配套展现 · 基础设施,一应俱全
07
<<< 左右滑动查看更多设施 >>>
配套展现 · 四大平台,一站式服务
08
科技创新服务平台
依托优质校企及专业机构资源,实现校企资源对接、产品中试及检测、科技成果认定、政策申报等服务,全方位提供技术资源支持。
产业金融服务平台
联合合作金融机构及投资机构,提供银行贷款对接、股权融资、供应链金融、融资租赁等定制化产业金融服务。
创新人才服务平台
与高等院校、专业人才服务机构强强联手,定向导入人才,举办专场招聘会、技能管理培训等,满足企业人才培养、引进、提升及奖励等需求。
多边资源共享平台
集聚国内外优质资源,定期举办开放日、高峰论坛、创新创业大赛等活动,为企业项目与企业家提供展示宣传、共享交流最佳平台。
昂宝电子集团
集成电路产品
雷竞技客户端 创立于 2004年,是亚洲最大的集成电路电源管理芯片设计公司之一。集团拥有自主研发的电源管理芯片、手机快充芯片、通用MCU系列、RF射频芯片及SOC系列、人工智能物联网和无人机专用芯片等几百款集成电路产品。
自主专利研发
昂宝电子所有产品都是基于自主专利设计研发,产品广泛应用在各种消费类电子、通信、计算机、新能源、物联网及人工智能等市场领域。多年来,集团致力打造稳定的国产芯片供应体系,实现芯片国产化,月均芯片出货量约3亿颗。
物联网解决方案
基于历年来多款芯片自主研发的优厚基础,广州昂宝走向产品应用端,致力AIoT全产业链的自主研发,从原有IC类产品向物联网和人工智能产品及系统纵深发展。推出了物联网全产业链解决方案、人工智能系列解决方案、无人机系列解决方案等。
<<< 向下滑动更多产品图片 >>>
芯片
物联芯片 控制芯片
电源芯片 传感芯片
硬件
智能门锁 智能照明
智能家电 电机驱动
终端
机器人 智慧闸机
无人机 智慧梯控
人脸识别设备
系统
智慧酒店/公寓方案
智慧养老/校园方案
合作企业
合作高校
心动不如行动
即刻扫码联系
往期推荐